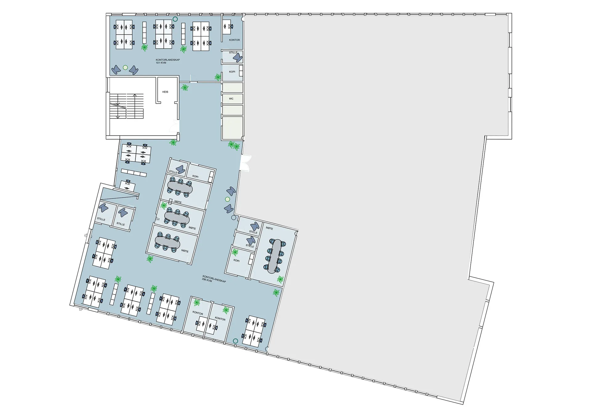
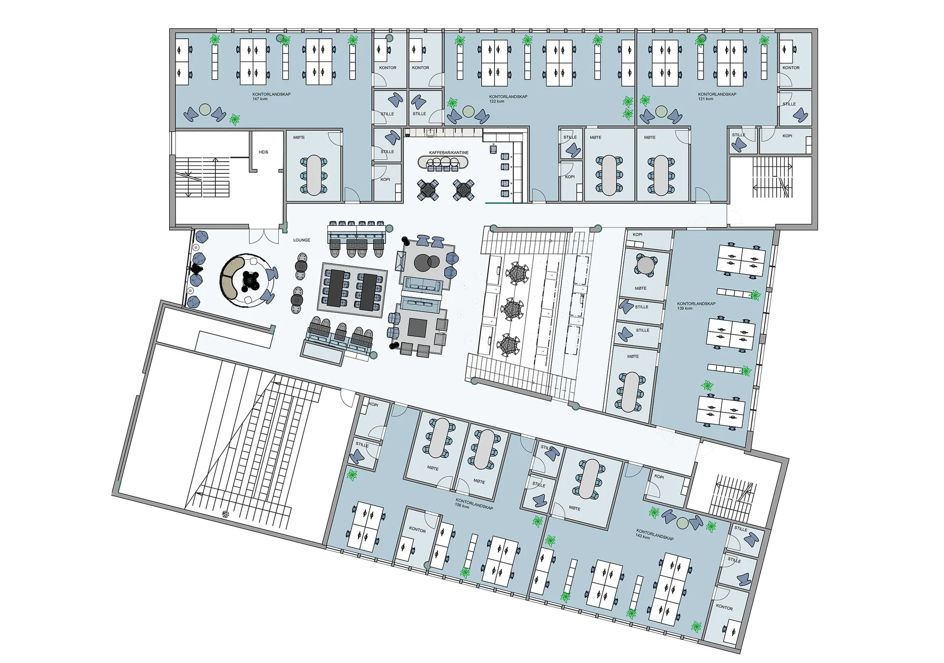
Alternative planløsninger – flere muligheter
Newsec